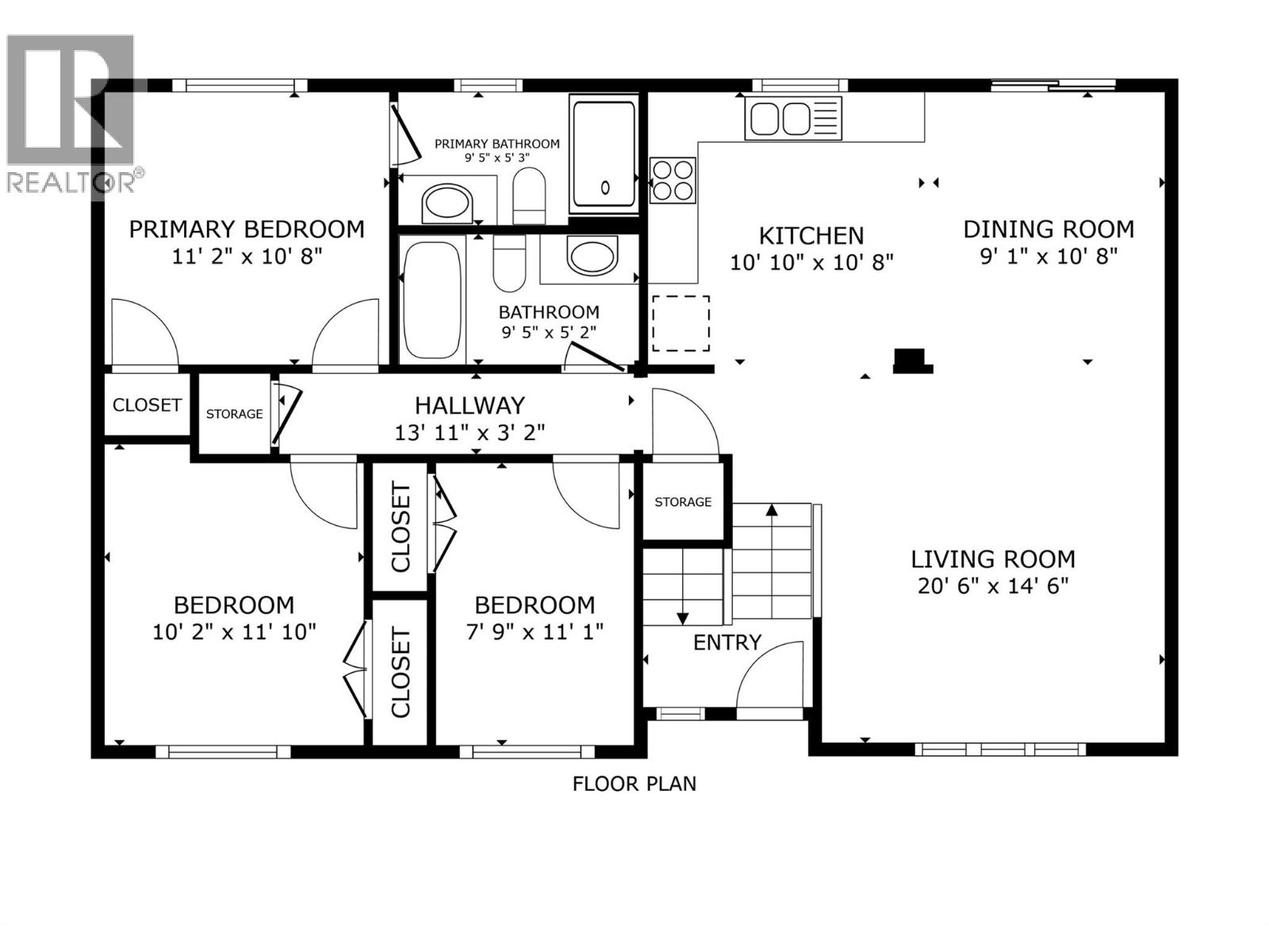
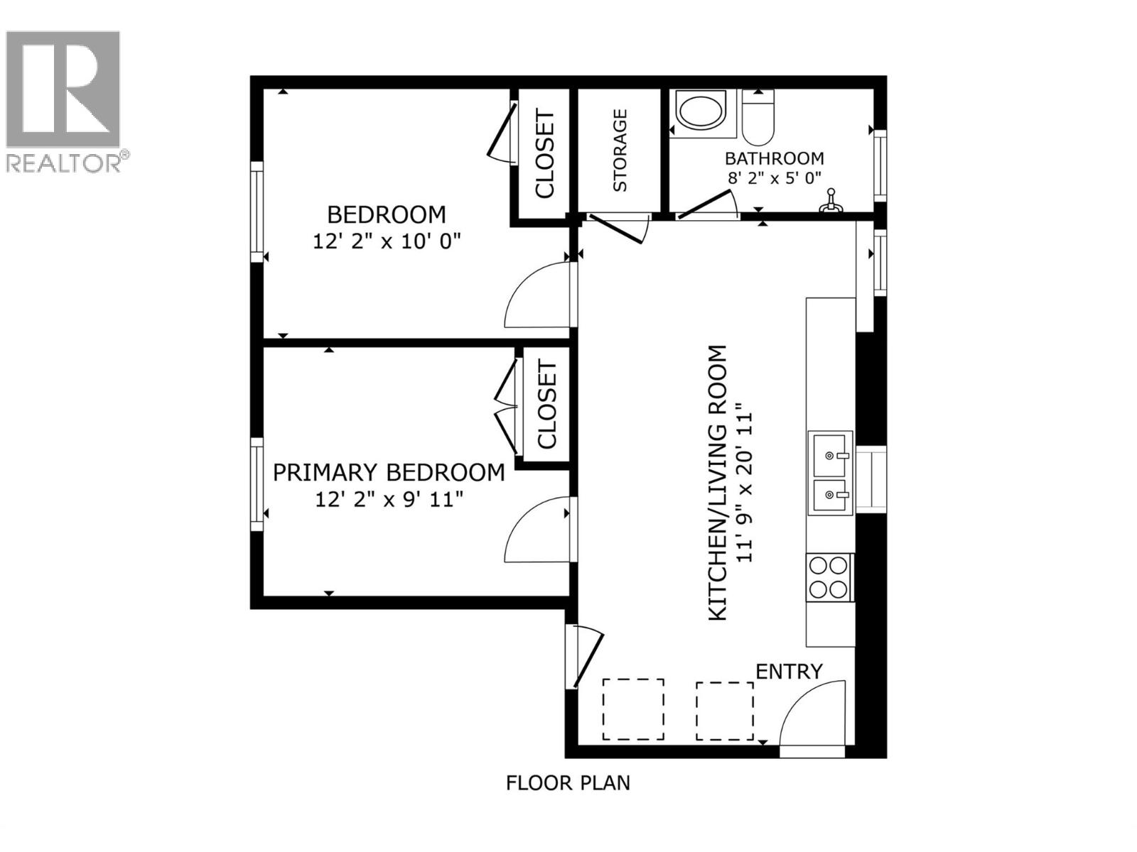
***COURT ORDERED SALE - Fully occupied and income generating home - Updated and versatile home in a sought-after Vernon family neighbourhood! Upstairs offers a bright 3 bedroom, 2 bathroom layout with modern updates throughout. Downstairs, you’ll find two self-contained and updated income producing suites – a 2 bedroom/1 bath and a 1 bedroom/1 bath – perfect for extended family or generating rental income. Whether you’re a first-time home buyer looking to offset your mortgage or an investor searching for strong rental potential, this property checks all the boxes. Conveniently located close to schools, parks, and amenities, this is a move-in ready opportunity you don’t want to miss! ****COURT ORDERED SALE - Reach out for more information on the Court Ordered Sale and the current rental rates. (id:4069)
Address
4210 17 Avenue
List Price
$775,000
Property Type
Single Family
Type of Dwelling
Single Family
Transaction Type
Sale
Area
British Columbia
Sub-Area
Vernon
Bedrooms
6
Bathrooms
4
Floor Area
2,207 Sq. Ft.
Lot Size
0.14 Ac.
Year Built
1975
MLS® Number
10363859
Listing Brokerage
Century 21 Assurance Realty Ltd
| Judy Lindsay Okanagan
Basement Area
Full
Postal Code
V1T7K8
Site Influences
Schools, Shopping, Ski area
Features
Level lot







































